Rodinný dům na klidném místě Smržov u Smiřic

Parametry nemovitosti

Okres: Hradec Králové
Město: Smržov u Smiřic
Typ: bungalov
Užitná plocha: 107m2
Výhody: klidné místo, u lesa
Makléř: Vladimír Kostka, DiS. / +420 737 346 412
Cena nemovitosti: 9 790 000 Kč

Popis nemovitosti

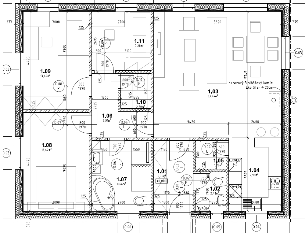
Nabízíme Vám exkluzivně na prodej částečně vybavený rodinný dům 4+kk v obci Smržov nedaleko Smiřic. Jedná se o přízemní dřevostavbu o vnitřní užitné ploše 106,86 m2 na vlastním pozemku o celkové výměře 826 m2.

Dispozice: krytý vstup, zádveří s vestavěnou skříní a technickou místností, obytná místnost s kuchyňským koutem se spíží, chodba s přístupem na půdu, koupelna s vanou, sprchovým koutem a saunou, komora, ložnice, dětský pokoj a pracovna a krytá terasa. Vedle RD stojí dílna a sklad na kola, motorky apod. Před domem je postaveno velké garážové stání pro 2-3 auta včetně dodávky. Pozemek je kompéletně oplocen a vpředu je elektricky ovládaná vjezdová brána. Okrasná zahrada je vybavena zavlažovacím systémem, venkovní sprchou, bazeném a krytou terasou.

Dostupné jsou tyto inženýrské sítě (elektřina 3x25A, vodovod + studna, splašková kanalizace, akumulační nádrž na dešťovou vodu, internet, STA).

Vytápění objektu zajišťují elektrické podlahové kabely a také krbová kamna s externím komínovým tělesem. Ohřev vody zajišťuje elektrický boiler. K dispozici je rovněž rekuperační jednotka umístěná v půdním prostoru, která zajišťuje optimální cirkulaci vzduchu v interiéru. Budova má také instalovány vnější rolety na el. pohon.

Obec Smržov má dobrou občanskou vybavenost (obecní úřad, integrovaná doprava, dětské hřiště a sportovní areál). Zbytek je k dispozici v nedalekých Smiřicích. Výhodouje rovněž dobrá dostupnost na nájezd na dálnici D11, ale také blízkost lesa.

Dům je k nastěhování ihned po dohodě s vlastníkem. Stejně tak rozsah vybavení RD je možno dohodnout. V případě oboustranného zájmu není vyloučena možnost směny nemovitostí.

Bližší informace Vám sdělí makléř.

Cena 9.790.000,- Kč včetně služeb RK