Nový zděný rodinný dům 5+kk se stáním pro auto Vysoká nad Labem

Parametry nemovitosti

Okres: Hradec Králové
Město: Vysoká nad Labem
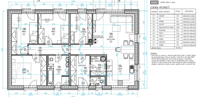
Užitná plocha: 104,80m2
Výhody: kompletní inženýrské sítě, novostavba, žádaná lokalita
Makléř: Vladimír Kostka, DiS. / +420 737 346 412
Cena nemovitosti: Info u RK

Popis nemovitosti

PRODÁNO. Nabízíme na prodej nízkoenergetický rodinný dům 5+kk s pergolou pro osobní auto v obci Vysoká nad Labem. Jedná se o přízemní zděnou stavbu před dokončením o užitné ploše 104,55 m2. Dům stojí na mírně svažitém pozemku o výměře 676 m2. K dispozici jsou veškeré inženýrské sítě (elektřina, plyn na hranici pozemku, obecní vodovod, obecní splašková i dešťová kanalizace).

Vnitřní dispozice: prostorné zádveří, technická místnost, WC, centrální chodba s přístupem do dvou pokojů (11,4 a 11,88 m2), ložnice (13,07 m2), do koupelny (7,84 m2) a na pochozí úložnou půdu, 4. pokojem je pak pracovna (8,04 m2). Obývací pokoj s okny do tří světových stran je propojen s kuchyní a jídelním prostorem (celkem 34,81 m2).

Stavba je zateplena polystyrenem tl. 150 mm, okna jsou plastová s vnějším dekorem a trojskly, vnější žaluzie mají elektrický pohon s dálkovým ovládáním, střešní krytina je Bramac - Tegalit.
Vytápění - teplovodní podlahové rozvody napojenené na elektrokotel, v obývacím pokoji tepelné čerpadlo typu vzduch – vzduch s klimatizací, komín pro krbová kamna. Ohřev vody boilerem.

K dokončení na klíč zbývá instalace podlahových krytin, obklady a dlažby, instalace sanity a zařizovacích předmětů a osazení interiérových dveří a obložek. Možnost výběru dekorů a ovlivnění finálního vzhledu interiéru dle vlastního vkusu.
Prodej domu se uskuteční po úplném dokončení stavby a kolaudaci, nebo v současném stavu (zákazník si práce provede svépomocí). Nemovitost lze financovat úvěrem - zajistíme včetně pojištění nemovitosti. K nastěhování dohodou.

Obec Vysoká nad Labem má velmi dobrou občanskou vybavenost (pošta, školka, obecní úřad, 2x samoobsluha, 2 linky MHD i integrovaná doprava, dětské hřiště a sportovní areál s tělocvičnou). Mezi velké přednosti obce patří především výborná dostupnost do HK i Pardubic, blízká nákupní centra, nedaleký nájezd na dálnici D11, blízký les, cyklostezky a trasy pěší turistiky, rozhledna Milíř.