Nový byt 2+kk s terasou Havlíčkův Brod - Roháče z Dubé

Parametry nemovitosti

Okres: Havlíčkův Brod
Město: Havlíčkův Brod - Roháče z Dubé
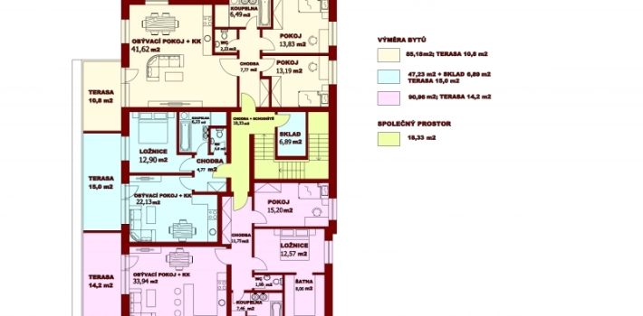
Užitná plocha: 62m2
Výhody: krásný výhled, novostavba, terasa, zděný, žádaná lokalita
Makléř: Vladimír Kostka, DiS. / +420 737 346 412
Cena nemovitosti: Info u RK

Popis nemovitosti

Nabízíme na prodej velmi pěkný rekonstruovaný byt 4+1 na Moravském Předměstí v Hradci Králové v ulici Jana Masaryka. Jedná se o byt v osobním vlastnictví, v 3.NP osmipodlažní panelové budovy. Celková výměra bytu činí 94 m2, přičemž dispoziční řešení bytu bylo prakticky upraveno.

Dispozice: předsíň, koupelna s vanou a prostorem pro pračku a sušičku, oddělené WC, kuchyň s malým posezením, obývací pokoj propojený s jídelnou, pracovna se vstupem na lodžii, lodžie s výhledem do ulice (JJV), ložnice, dětský pokoj a sklepní kóje v suterénu budovy.
Výhled do parku s dětským hřištěm a do ulice. Orientace SSZ – JJV.

Rekonstrukce bytu: zděné jádro s rozvody jednotlivých sítí, kuchyňská linka se spotřebiči, podlahy PVC a dlažba, plastová okna, dýhované posuvné dveře s obložkami, bezpečnostní vstupní dveře. Rekonstrukce budovy: nové vchody a schránky, střecha, výtah, spáry mezi panely, stoupačky. Sítě: el., plyn, vytápění a ohřev vody dálkově, internet a STA.

V místě veškerá občanská vybavenost – pošta, hypermarket Albert, OC Futurum, MHD, poliklinika III, fitness centrum ad. Parkoviště před domem. Rychlý přístup do centra i do přírody (Nový Hradec Králové, Malšovice). Nastěhování po dohodě. Cena 6.360.000 Kč vč. služeb kanceláře. Financování úvěrem bezplatně zajistíme.